7547, 754737547-75473
Поиск деталей
Установка двигателя, система смазки, пневмостартерный пуск;Mounting of the engine, lubrication system, pneumatic start-upСистема питания двигателя;Engine fuel supply systemСистема выпуска отработавших газов;Exhaust systemСистема охлаждения двигателя;Engine cooling systemСистема охлаждения двигателя 2;Engine cooling system 2Карданная передача;Gimbal driveЗадний мост;Rear axleРама;FrameПодвеска;SuspensionПередняя ось;Front axleКолеса и шины;Wheels and tiresРулевое управление;SteeringТормозные системы;Brake systemsЭлектрооборудование;Electrical equipmentИнструмент и принадлежности. Система пожаротушения;Tools and accessories. SprinklerКабина, оперение и платформа;Cabin, fendering and bodyОпрокидывающий механизм;Dumping mechanismПодшипники;Bearings

Трубопроводы системы охлаждения на самосвале БелАЗ-75473;Pipelines of cooling system on dump truck BELAZ-75473

Трубопроводы системы охлаждения на самосвале БелАЗ-7547;Pipelines of cooling system on dump truck BELAZ-7547

Вентиляторы и их привод;Fans and their drive

Блок радиаторов на самосвале БелАЗ-7547;Set of radiators of dump truck BELAZ-7547

Установка блока радиаторов и кожуха вентилятора на самосвале БелАЗ-75473;Mounting of set of radiators and fan housing onto dump truck BELAZ-75473

Блок радиаторов на самосвале БелАЗ-75473;Set of radiators of dump truck BELAZ-75473

Радиатор;Radiator

Радиатор водяной (ширина 800 мм);Water radiator (width 800 mm)

Радиатор масляный (ширина 200м);Oil radiator (width 200 mm)

Радиатор водяной (ширина 600 мм);Water radiator (width 600 mm)

Привод вентилятора;Fan drive

Ролик натяжной;Belt idler

Установка жалюзи радиаторов и их привод на самосвале БелАЗ-7547;Mounting of radiators shutters and their drive

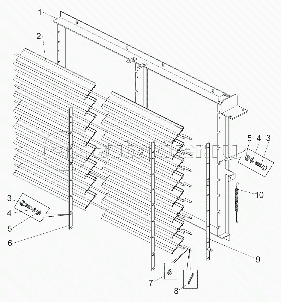
Жалюзи радиаторов на самосвале БелАЗ-7547;Shutters of radiators of dump truck BELAZ-7547

Пневмопереключатель;Pneumatic switch

Установка жалюзи радиатора на самосвале БелАЗ-75473;Mounting of radiator shutters on dump truck BELAZ-75473

Жалюзи радиатора на самосвале БелАЗ-75473;Shutters of radiators of dump truck BELAZ-75473

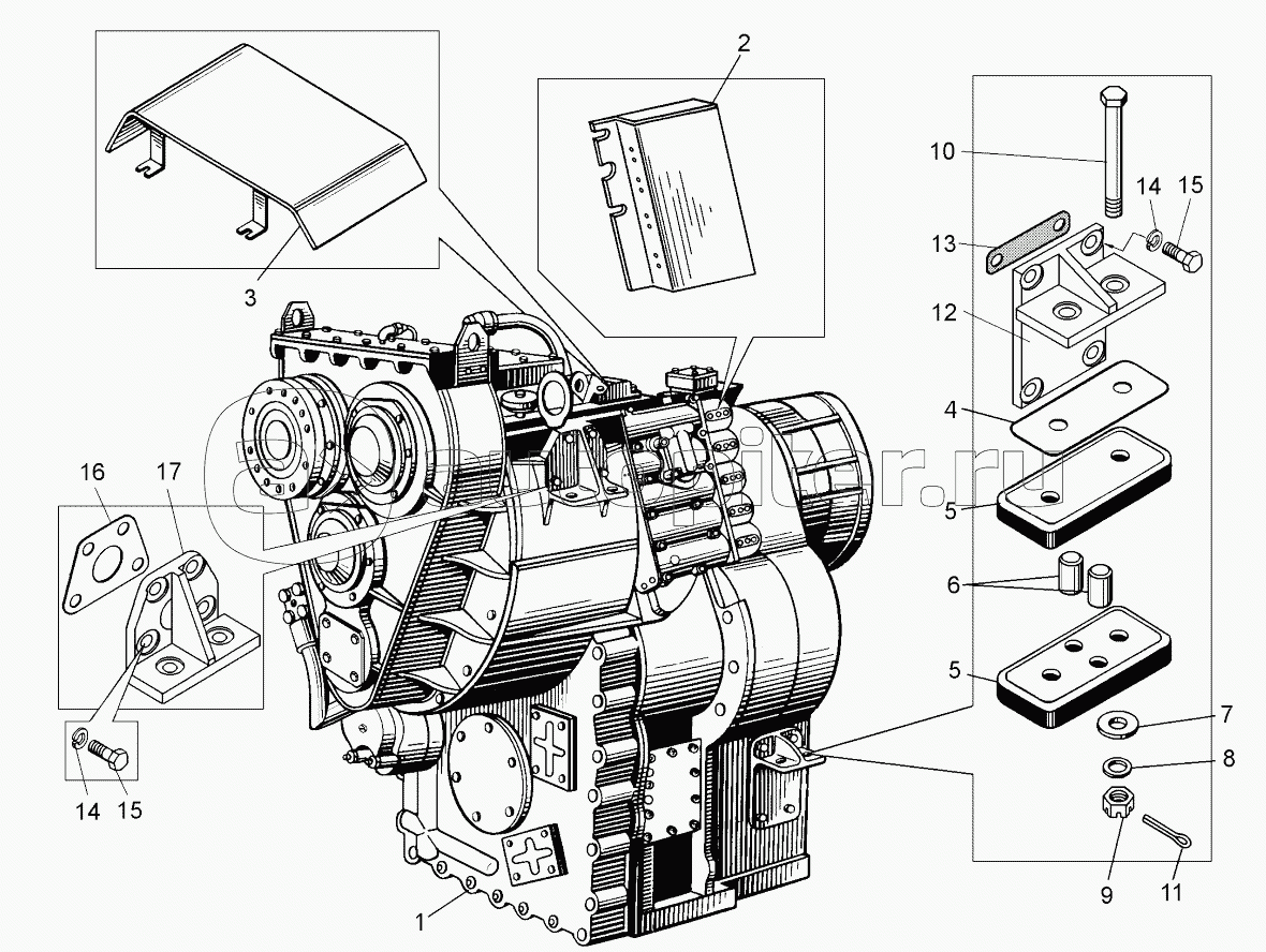
Гидромеханическая передача;Hydromechanical gear

Гидромеханическая передача. Вид I;Hydromechanical gear. View I

Гидромеханическая передача. Вид II;Hydromechanical gear. View II

Насос масляный передний;Front oil pump

Гидротрансформатор с коробкой передач;Torque converter with gearbox

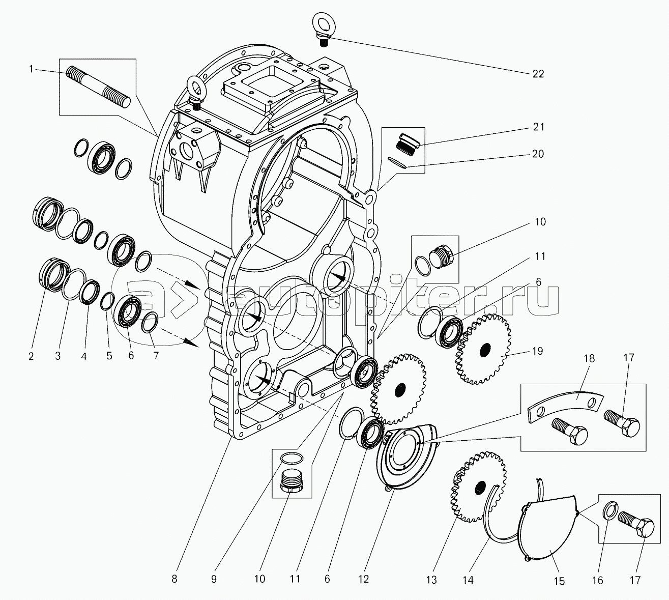
Картер гидротрансформатора в сборе;Casing of the torque-converter as set

Картер гидротрансформатора;Torque-converter casing